Deheza 2300 | BEL1380

FICHA

  • Producto Departamento
  • Operación Venta
  • Barrio Núñez
  • Ambientes 3
  • Dormitorios 2
  • Baños 2
  • Estado Excelente
  • Disposición Frente
  • Sup. Propia 80,00 m2
  • Sup. Cubierta 66,00 m2
  • Sup. Semi Cubierta 14,00 m2

U$S 310.000

VENTA

Deheza 2300

Núñez

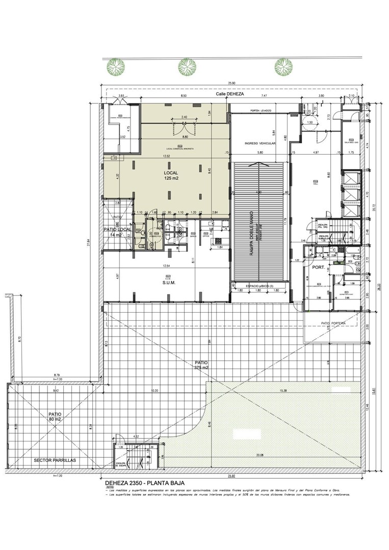
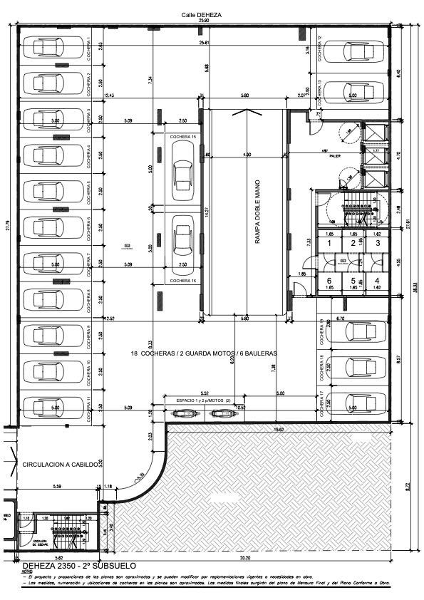
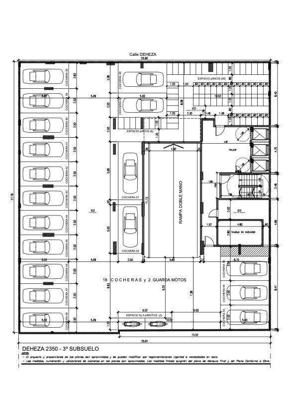
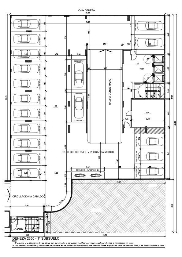
Terrazas de Nuñez El proyecto se encuentra ubicado sobre la calle Deheza a media cuadra de la Av. Cabildo hacia el río y la calle Vuelta de Obligado. El tejido actual prevaleciente en la manzana es de tipologías edilicias varias con alturas entre 2 a 4 niveles. La tipología elegida para el proyecto es de EDIFICIO ENTRE MEDIANERAS desde la L.O. hasta la L.F.I. ubicada a 20,72 m. El lote se encuentra comprendido en un Área de Alta Mixtura de Usos del Suelo 4, los usos definidos son de VIVIENDA MULTIFAMILIAR, LOCAL COMERCIAL y COCHERAS además de las áreas comunes y de servicios. El proyecto es de 12 pisos y 3 subsuelos de cocheras y servicios, en la planta baja 1 local a la calle, la portería , y espacio verde en el pulmón de manzana. En los pisos altos hay 78 viviendas entre 44 y 90 m2, que están distribuidos en plantas del 1º al 10º piso, un primer retiro en el 11º piso, y un segundo retiro en el 12º piso. AMENITIES: En la planta baja se ubican la Portería y gran parte de los amenities que incluyen SUM / COWORK, Parrillas, y jardín parquizado. El resto de los amenities están en el piso 12º que incluyen GYM, Deck con Solarium, Piscina, baño con duchas, y terraza con Vistas Panorámicas al Río de la Plata. En el 1° subsuelo está prevista la ubicación del Grupo Electrógeno, y en el 3° subsuelo los espacios para Bike Parking. Terminaciones y Calidades Constructivas: ESTRUCTURA RESISTENTE Compuesta por bases, columnas, vigas y losas de hormigón armado según Código de edificación del Gobierno de la Ciudad Autónoma de Buenos Aires y normas CIRSOC. MAMPOSTERIA Muros exteriores de ladrillo hueco de 0,15m con aislación hidrófuga. Muros interiores divisores de unidades con ladrillo hueco de 0,15m y divisiones con ladrillos de 0,10m de espesor. REVOQUES Yeso en interiores de los departamentos y palieres. En el resto de las partes comunes del edificio fino a la cal. Terminación en el exterior del edificio con texturado plástico tipo Quimtex o similar. PISOS Piso de porcellanato en ambientes, baños, cocinas; y balcones. Porcellanato mate en los palieres, y brillante veteado en hall de entrada del edificio. CIELORRASOS Aplicado de yeso c/buñas en estar-comedor y dormitorios, y cielorraso armado en baños y sector cocinas. PINTURA Terminación interior de paredes con pintura al látex; marcos y hojas de puertas con esmalte sintético. CARPINTERIAS Interiores: Puertas de ingreso a las unidades con marcos y hoja de chapa doblada BWG 18 reforzada y relleno cortafuego; el resto de las puertas placa con hojas de madera MDF para pintar. Herrajes tipo sanatorio o similar. Exteriores: Marcos y hojas de aluminio anodizado color natural tipo A30 New. Vidrios de doble vidriado hermético (DVH), y además en puertas-ventanas con laminado 3+3 de seguridad. Están previstas cortinas de enrollar exteriores de aluminio color como dispositivo de oscurecimiento únicamente en los dormitorios. Hall de ingreso: puerta de acceso de Blindex o de acero inoxidable y vidrio. PLACARES Los deptos. tendrán placares de melanina color, y el interior completo con cajoneras, estantes y barrales. MUEBLES DE COCINA Bajo mesada y alacena con puertas en Melamina color, de 18 mm con cantos enchapados en PVC y laterales de los muebles blancos. MESADAS En las cocinas se colocará mesada de Cuarzo Natural (tipo SILESTONE) de 2 cm de espesor con zócalos de 6 cm de altura, y bacha de acero inoxidable marca Johnson o Mi Pileta. Espacio previsto para lavarropas bajo mesada. COCINA Se proveerá cocina marca Longvie de 4 hornallas con horno a gas, y campanas de extracción de acero inoxidable marca TST o similar con conducto de salida al exterior a los 4 vientos. ARTEFACTOS DE BAÑO Las unidades se entregan con artefactos blancos de ROCA o FERRUM línea VENETO o similar, bañeras de 1,50 marca ROCA y Vanitorys de 0,56 de ancho con mesada de SILESTONE y bacha de apoyar. GRIFERIAS Y ACCESORIOS Las griferías son todas monocomando marca FV línea PUELO o similar en baños y cocinas. Los accesorios para baño se componen de un kit que incluye jabonera, toallero, portarrollos y perchas. AIRE ACONDICIONADO Provisión e instalación de equipos individuales frio/calor tipo split de 1o marca, incluyendo los desagües de condensación. INSTALACION SANITARIA Y CALEFACCION Provisión e instalación de calderas a gas individuales para agua caliente y calefacción por radiadores y termostatos digitales programables. El tendido de cañerías para agua fría y caliente se hará con material de termofusión. Los desagües sanitarios son de AquaDuct, PVC 3,2 para bajadas de pluviales, todo de acuerdo a las normas de AYSA y Gobierno de la Ciudad Autónoma de Buenos Aires. Los Tanques de bombeo y de reserva cumplirán con los cálculos reglamentarios y serán de hormigón armado. INSTALACION DE GAS La instalación se realizará de acuerdo con los reglamentos de Metrogas para la alimentación de las cocinas y calderas individuales. INSTALACION ELECTRICA La instalación se realizará de acuerdo con los reglamentos de EDENOR y el ENRE, con llaves termomagnéticas y disyuntores diferenciales, llaves, tomas, bocas de TV, bocas de telefonía y portero eléctrico. Tapas y teclas marca Jeluz modelo Verona o similar. Artefactos de luz en áreas comunes (hall, palieres y balcones). PORTERO VISOR Se entrega con sistema de portero visor blanco con cámara de seguridad incorporada en planta baja y timbre de palier. INSTALACION CONTRA INCENDIO La instalación se realizará de acuerdo con las ordenanzas municipales con lanza, manguera y matafuegos en cada piso. Sistema de inyección y extracción con evacuación de gases por conductos en caja de escalera. En cocheras habrá un sistema de hidrantes en todos los niveles, además de rociadores en el 2o subsuelo de acuerdo con los Reglamento Técnicos del Código de Edificación de la CABA. ASCENSORES Se instalarán tres (3) ascensores automáticos de Alta Velocidad y Maniobra selectiva, con cabina de acero inoxidable y espejo. GRUPO ELECTRÓGENO Se instalará 1 grupo electrógeno a gas o diesel para alimentar únicamente 1 ascensor, equipos de bombeo sanitario, portones vehiculares y áreas comunes de circulación. CONSULTENOS POR LAS UNIDADES DISPONIBLES EN EL EDIFICIO POSESIÓN INMEDIATA !! ciudad de la paz 1978 belgrano@caian.com.ar teléfono: 11 4784 4444 whatsapp: 11 2823 4444 Seguínos en Instagram @caianbelgrano.nordelta Martillero Responsable: Juan Manuel Caian Matrícula 4689 CPI / 6668 CMCPSI


ADICIONALES

A Estrenar
Apto Profesional
Balcón
Luz

*Las descripciones arquitectónicas, valores de expensas, impuestos o servicios, fotos y medidas de las propiedades son aproximados. Los datos fueron proporcionados por el propietario y pueden no estar actualizados a la hora de la visualización de este aviso por lo cual pueden arrojar inexactitudes o discordancias con las que surjan de los las facturas, títulos o planos legales del inmueble. Se pondrá a disposición del interesado la documentación necesaria a fin de realizar las verificaciones respectivas previamente a la realización de cualquier operación, requiriendo por sí o sus profesionales la documentación que corresponda.

PROPIEDADES SIMILARES

DEPARTAMENTO

Cabildo 4600

Núñez, Capital Federal, Buenos Aires

VENTA

U$S 315.000

87,50 m2 2 Dorm 2 Baños
DEPARTAMENTO

Cabildo 4600

Núñez, Capital Federal, Buenos Aires

VENTA

U$S 302.000

87,50 m2 2 Dorm 2 Baños
DEPARTAMENTO

Cabildo 4600

Núñez, Capital Federal, Buenos Aires

VENTA

U$S 292.000

87,50 m2 2 Dorm 2 Baños

CONTACTO





Solicitá tu tasación !

Nuestro compromiso es acompañarte y brindarte todo lo necesario para lograr tu objetivo.

Caian Negocios Inmobiliarios. COPYRIGHT 2026 CUCICBA CIA CMCPSI

Desarrollado por TecnoGestión Sistemas