Holmberg 3300 | BEL1402

FICHA

  • Producto Departamento
  • Operación Venta
  • Barrio Villa Urquiza
  • Ambientes 1
  • Baños 1
  • Estado Excelente
  • Disposición Frente
  • Sup. Propia 40,00 m2
  • Sup. Cubierta 35,00 m2
  • Sup. Balcón 5,00 m2

U$S 110.000

VENTA

Holmberg 3300

Villa Urquiza

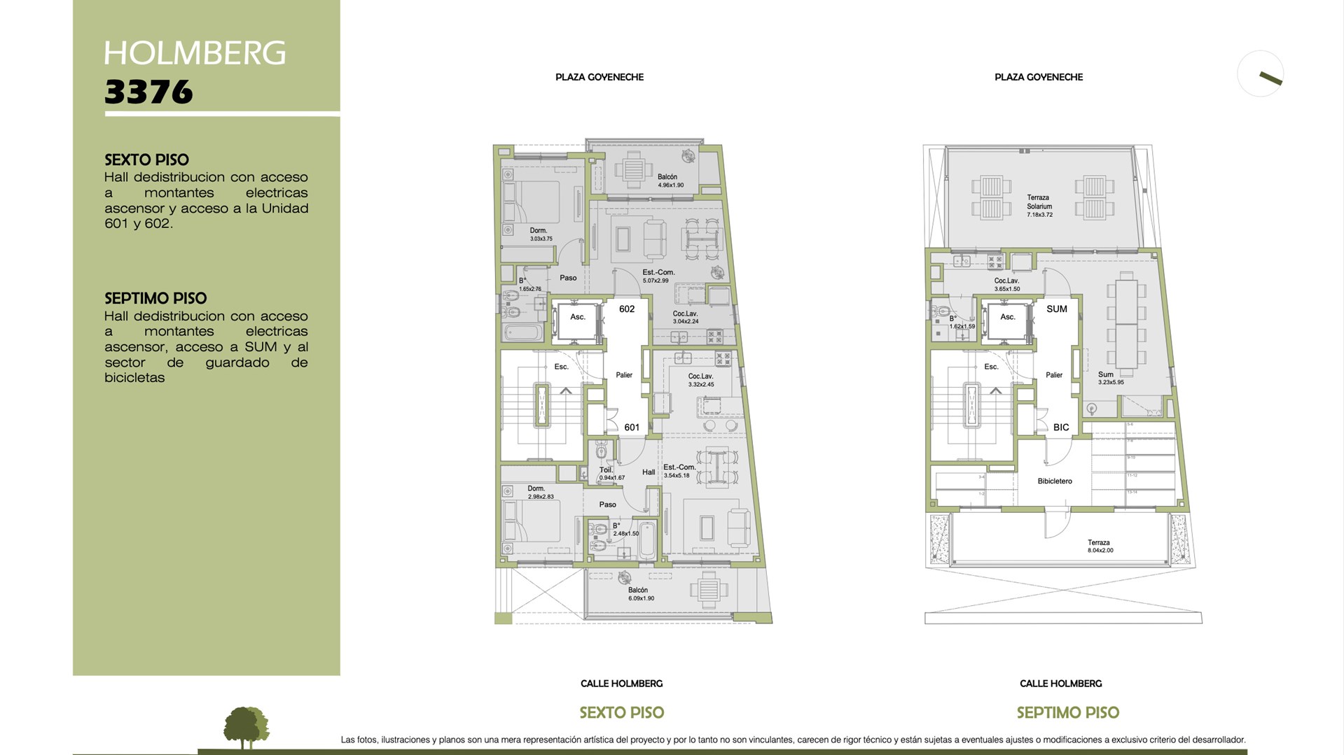
EDIFICIO HOLMBERG 3376 UNIDADES DE 1, 2 Y 3 AMBIENTES DISPONIBLES - FECHA DE ENTREGA ESTIMADA: OCTUBRE 2026 - EL EDIFICIO TIENE SUM CON PARRILLA Y BALCÓN TERRAZA Y SECTOR DE GUARDADO PARA BICICLETAS - LAS UNIDADES SON 100% ELECTRICAS, TODAS TIENEN CONEXION PARA LAVARROPAS Y TODAS TIENEN BALCÓN O TERRAZA YA QUE EL EDIFICIO SE ENCUENTRA UBICADO SOBRE LA CALLE HOLMBERG Y EL CONTRAFRENTE CON VISTA A LA PLAZA GOYENECHE. - COCHERA OPCIONAL - LAS UNIDADES SE ENTREGAN CON LAS SIGUIENTES TERMINACIONES: * Instalación Eléctrica: Las unidades se entregarán con un tablero seccional, que estará provisto de llaves térmicas y disyuntor diferencial. Se realizará el circuito de iluminación, circuito de tomas, circuito de uso especial y un circuito para el equipo de aire acondicionado. En las unidades no se proveerá ni instalarán artefactos de iluminación. * Paredes Exteriores: Revestimiento plástico texturado (color a definir). * Paredes Interiores: Serán terminadas en yeso y pintura base, los espacios comunes contarán con terminaciones en revoque plástico texturado color. * Pisos: Todos los ambientes principales pisos de porcelanato, los sectores de baño y cocina tendrán cerámicos o porcelanatos. En balcones y terrazas tendrán pisos cerámicos para exterior. * Zócalos: Serán de fibrofacil con terminaciones esmaltes sintético (color a definir). * Revestimientos: Se colocará revestimiento cerámico (color a definir) en baños principales, en sector de ducha y bañera. Los toilettes tendrán colocación hasta un metro de altura y terminación de yeso para pintar o revoque plástico texturado color. * Cielorrasos generales: Estarán terminados en aplicados de yeso, armados de yeso y/o sistema de placa de roca de yeso. * Cielorrasos de baños y cocinas: Serán suspendidos de placas de roca de yeso con terminación de pintura color blanco. * Carpinterías exteriores: Aluminio o pvc con DVH (doble vidrio hermético). * Muebles de cocina: Melamina de 18mm (color a definir), compuesto por bajo mesada completo, mesadas de granito. * Frentes e interiores de placard: Serán puertas corredizas en aluminio anodizado natural y melamina (color a definir). * Sanitarios y Griferías: Se instalarán griferías mono-comando cromadas y sanitarios completos. La pileta de la cocina será de acero inoxidable simple o doble según la unidad. * Equipamientos: Anafe eléctrico de 2 hornallas en monoambiente y cocina eléctrica completa en unidades de dos o tres ambientes. * Agua caliente: Termotanque central de alta recuperación con sistema de presurización y recirculación. * Calefacción: Preinstalación para acondicionador de aire, e instalación eléctrica preparada para radiadores o placas de calefacción. * Puertas de las unidades y escaleras: Ignifugas según norma e interiores en fibrofacil para pintar. * Sistema de cámaras de seguridad. * Ascensor de última generación en acero inoxidable. ciudad de la paz 1978 belgrano@caian.com.ar teléfono: 11 4784 4444 Seguínos en Instagram @caianbelgrano.nordelta Martillero Responsable: Juan Manuel Caian Matrícula 4689 CPI / 6668 CMCPSI Excelencia en Servicios Inmobiliarios, desde 1972.


ADICIONALES

A Estrenar
Balcón
Luz

*Las descripciones arquitectónicas, valores de expensas, impuestos o servicios, fotos y medidas de las propiedades son aproximados. Los datos fueron proporcionados por el propietario y pueden no estar actualizados a la hora de la visualización de este aviso por lo cual pueden arrojar inexactitudes o discordancias con las que surjan de los las facturas, títulos o planos legales del inmueble. Se pondrá a disposición del interesado la documentación necesaria a fin de realizar las verificaciones respectivas previamente a la realización de cualquier operación, requiriendo por sí o sus profesionales la documentación que corresponda.

CONTACTO





Solicitá tu tasación !

Nuestro compromiso es acompañarte y brindarte todo lo necesario para lograr tu objetivo.

Caian Negocios Inmobiliarios. COPYRIGHT 2026 CUCICBA CIA CMCPSI

Desarrollado por TecnoGestión Sistemas